Alamat
No 1, Jalan Yd, Daerah Huishan, Bandar Wuxi, Jiangsu. 214183
Waktu Kerja
Isnin hingga Jumaat: 9AM - 5PM
Sabtu: 9AM - 4PM
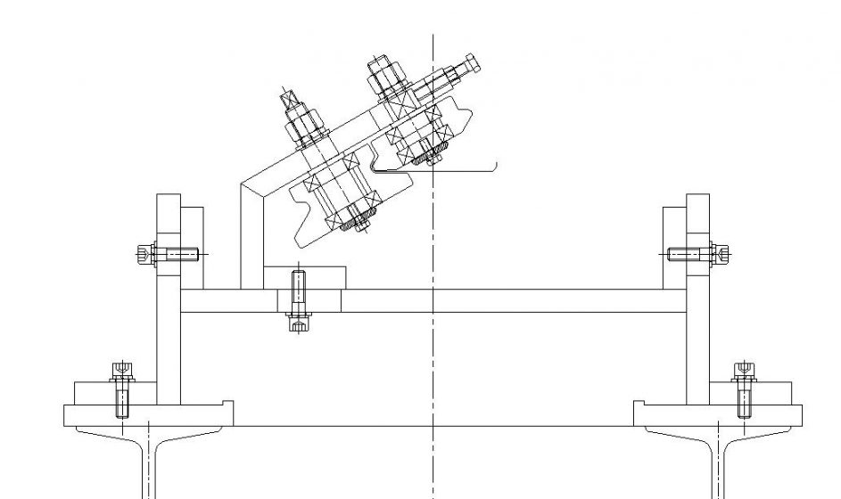
Dalam aplikasi awal, Mesin Pembentuk Roll adalah berdasarkan penggelek membentuk gulungan mel. Dan jika produk keluaran tidak berpuas hati, maka pereka bentuk akan menambah beberapa gulungan sisi yang dipasang untuk menyelesaikan masalah. Oleh kerana had masa dan kewangan, kebanyakan gulungan sisi hanya terdiri daripada sepasang gulungan sesondol yang diikat pada bingkai yang dikimpal.
Sudah tentu, ia boleh dilaksanakan tetapi sukar untuk menyediakan dan menyesuaikannya.
Gulung sisi juga merupakan bahagian utama kilang membentuk gulungan. dan kelebihan seperti di bawah:

Aci penyangga roll sisi boleh disokong pada kedua-dua hujungnya. Terdapat beberapa aci dengan gulungan dipasang untuk membentuk tepi khas yang agak sukar dengan penggelek utama.

Terdapat 2 gulungan sisi dipasang dalam satu struktur. iaitu untuk membentuk tepi dan juga membimbing gegelung ke arah yang betul.

Lihat butiran lanjut tentang Percaya Syarikat Industri dan Komponen Pembentuk Roll:
Semua mesin membentuk roll disesuaikan, E-mel saya untuk maklumat lanjut
Pembentuk Gulungan Pelapisan Dinding: Panduan Pembeli Lengkap 2026 Pelapisan dinding...
Baca LagiMesin pembentuk gulungan panel dinding yang saling berkunci ialah mesin pembentuk gulungan sejuk yang...
Baca LagiMesin membentuk gulungan papan kerja perancah ialah mesin perindustrian automatik...
Baca LagiMesin membentuk gulungan rak simpanan ialah kilang pintar...
Baca LagiLanggan sekarang untuk terus membaca dan mendapatkan akses kepada arkib penuh.

3 Comments
[…] Penggelek Bantu, juga dinamakan gulungan sisi. kadangkala merupakan bahagian penting dalam kilang pembentukan gulungan untuk memastikan kualiti profil […]
[…] daripada spacer, bahagian mesin pembentuk gulung juga termasuk penyangga pembentuk gulung, penggelek, gulungan sisi, pelurus, […]
[…] hubungi kami untuk maklumat lanjut tentang Gulungan Sisi, Penebuk Putar, Penyangga Pembentukan Gulungan, Garisan Embossing, dan sebagainya yang merupakan bahagian-bahagian gulungan lengkap […]