Address
No 1, Yd Road, Huishan District, Wuxi City, Jiangsu. 214183
Work Hours
Monday to Friday: 9AM - 5PM
Saturday: 9AM - 4PM
Cable Tray System is used to support insulated cables or wiring for power control, communication and distribution.
In the commercial and industrial construction, cable tray is widely used as an alternative to open wiring or cables conduit system. And they are very useful in situation where changes to a cable system are expected. Because new cables can be installed by laying them in the tray, instead of pulling them through a pipe.
Nowadays, A Cable Tray Roll Former can produce both solid and ventilated cable trays, and also the cable tray cover.
Use what material is based on where it will be used, Galvanized tray may be made of pre-galvanized steel sheet fabricated into tray. Or may be hot-dip galvanized after fabrication. When galvanized tray is cut to length in the field. And usually the cut surface will be painted with a zinc-rich compound to protect the metal from corrosion.
This Cable Tray Load & Type Engine is a professional-grade structural tool designed for the electrical and roll forming industries. It calculates the Safe Working Load (kg/m) and Deflection based on NEMA VE 1 standards, allowing users to switch between Ladder, Perforated, and Solid Bottom architectures.
By inputting specific side rail heights, tray widths, and material thicknesses, engineers can determine if a profile will support specific cable weights over a given span. It is an essential utility for optimizing material usage while ensuring compliance with industrial safety and structural integrity requirements.
Industrial Roll Forming Specification Tool
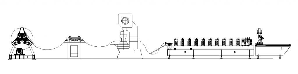
The whole line is consist of Uncoiler, Leveler, Servo Feeder and Punch Press, Roll Former, Cutoff Unit, Controlled Box, Collection Table.

Investing in a Cable Tray Roll Forming Machine is a strategic move toward manufacturing excellence and operational efficiency. By integrating advanced roll design software and precision-engineered forming stations, manufacturers can produce high-quality, high-tolerance profiles that meet the rigorous demands of the global industrial sector. The transition from manual bending to automated, continuous roll forming significantly reduces production downtime and material waste while ensuring consistent structural integrity across every meter of product.
Don’t let outdated equipment bottleneck your production potential. Take the next step in industrial automation with Beli Rollforming’s world-class solutions.
Consult with our Experts: Get a tailored technical analysis of your specific profile requirements.
Request a Quote: Receive a comprehensive breakdown of our latest cable tray forming lines.
Explore Our Technical Library: Read our comprehensive analysis of roll forming machine technology to understand the mechanics behind our precision engineering.
[Contact Believe Industry Company Today] — Your Partner in High-Performance Rollforming Solutions.
A scaffold workboard roll forming machine is an automated industrial...
Read MoreA storage rack roll forming machine is a smart factory...
Read MoreA step beam machine is an advanced industrial roll forming...
Read MoreA Strut Channel Machine Mexico is a high-speed, automated production...
Read More